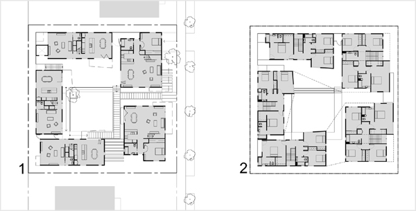
This five unit residential project designed around a courtyard utilizes the existing soil on site as a building material and means of social connection. The three and four bedroom units are intended for moderate income families with children.
![]() |
Czech Office Interagent Bridge Portland Robbins |
|
COURTYARD HOUSING
Portland, Oregon
This five unit residential project designed around a courtyard utilizes the existing soil on site as a building material and means of social connection. The three and four bedroom units are intended for moderate income families with children.
|
|
The project is broken into distinct units similar in scale to the surrounding single family homes. Space for gardening is provided in the courtyard and along the south edge of the site, acting as both a social activity and endorsement of healthy eating habits. Surface treatment and planting serve to dissipate noise in the courtyard.
|
|
The spaces between residential units serve a variety of purposes. At the front is the primary entry from the street to the courtyard. Along the sides are covered outdoor spaces for casual meeting and conversation with neighbors, while at the back is circulation down to the parking and storage.
|
|
Subtle finish variations occur across the wood panel facades, creating a soft striation along the walls. At the second floor of each unit a colorful cantilever adds depth to the facades. Along the north edge of the site the housing units are elevated over the semi-submerged parking while soil excavated for the parking is redistributed on the new sod roofs. Rainwater drains to on site cisterns in the parking area for graywater applications.
|
|
The portion of the courtyard over the semi-submerged parking is a wood deck overlooking the landscaped area at grade below.
|
|